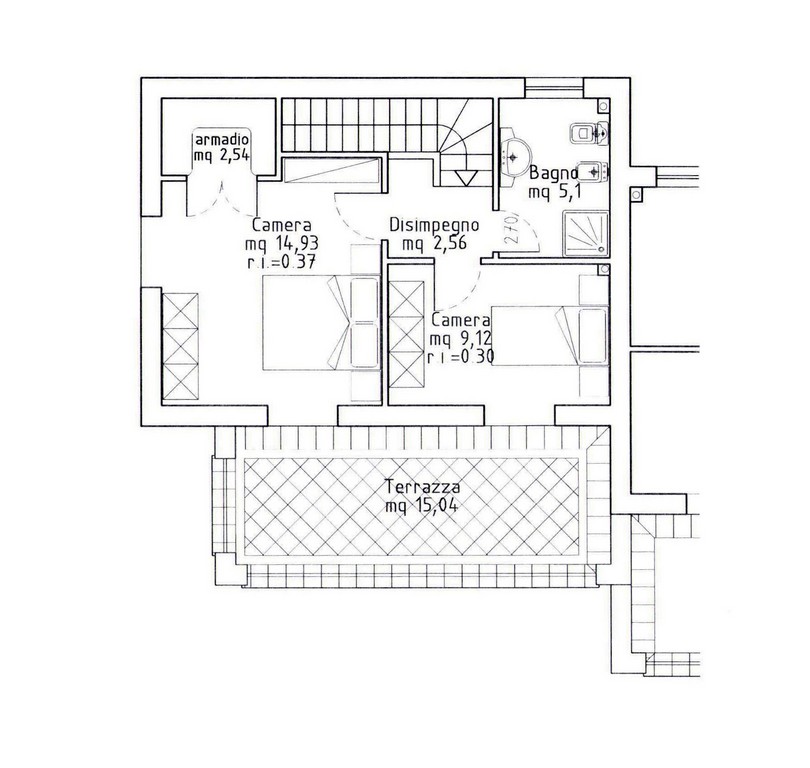
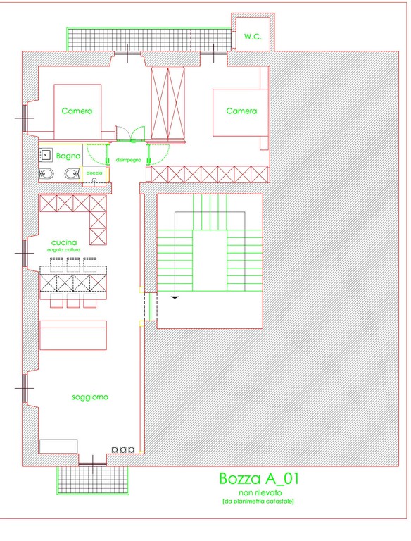
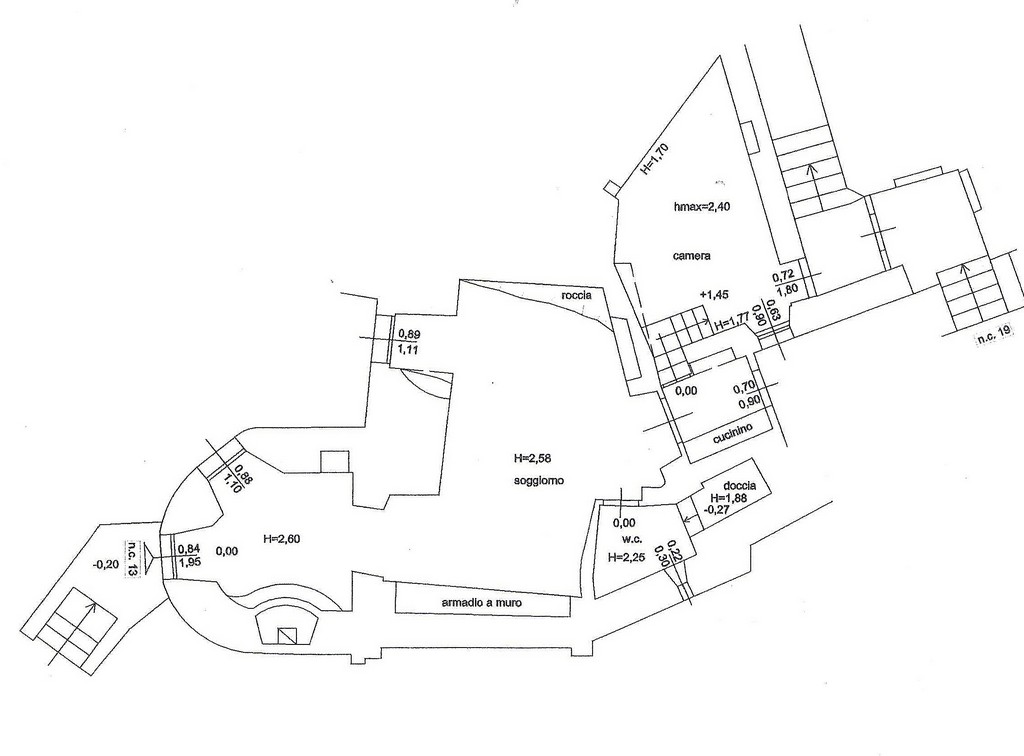
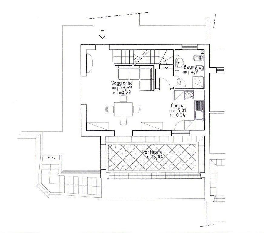
FastHomeStore service

Contenuto cartella

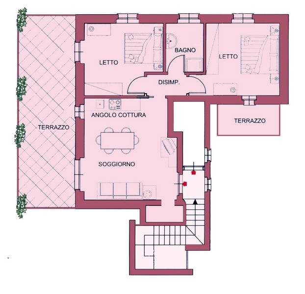
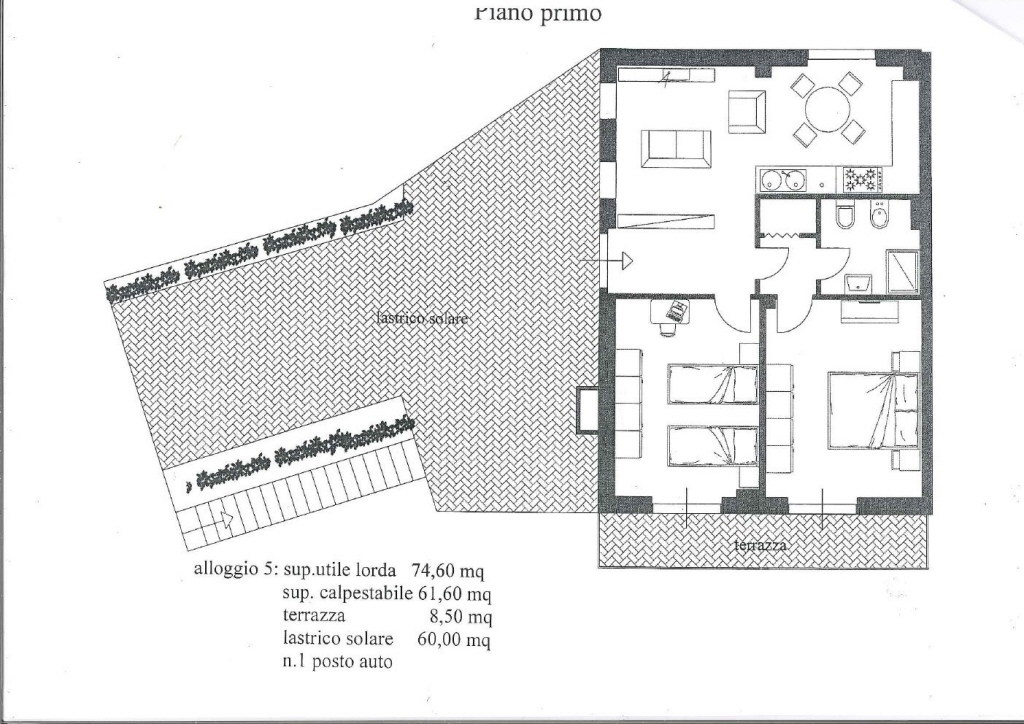
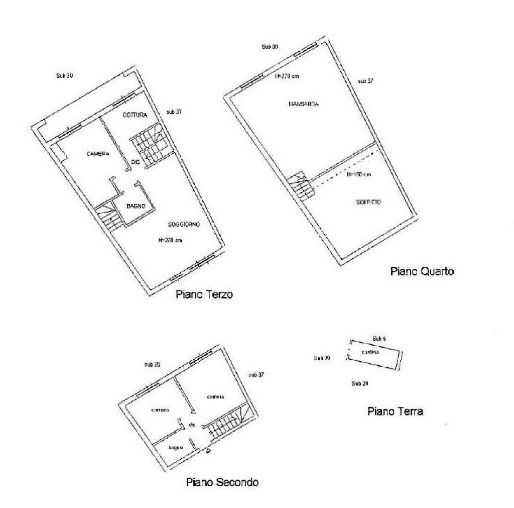
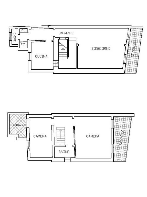
VISIGALLI - Lerici - Rif. 922 - foto