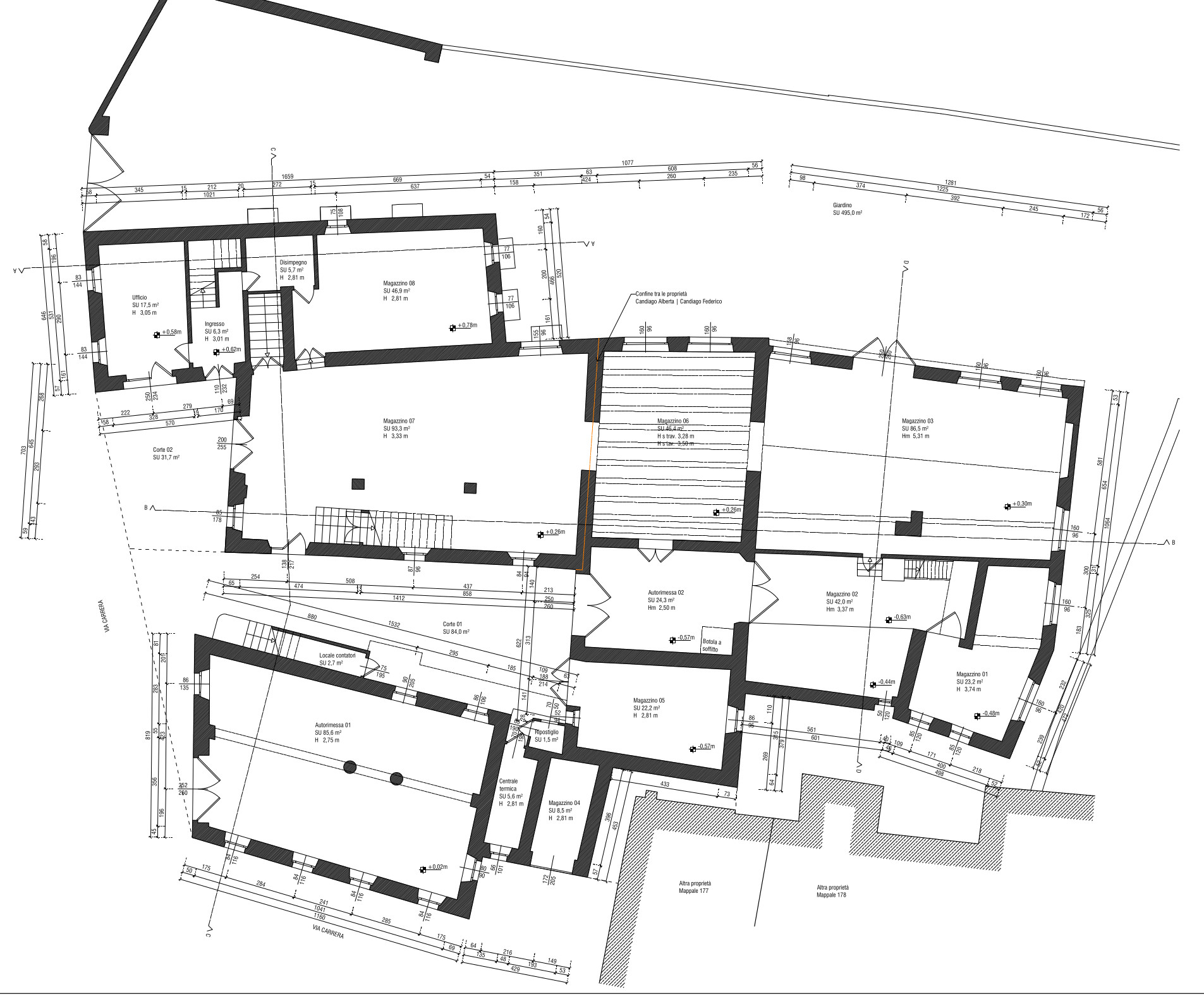
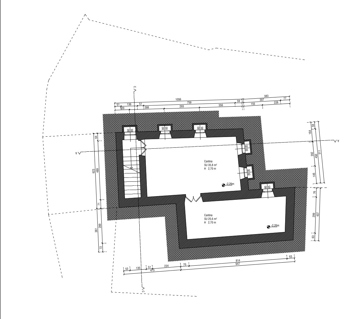
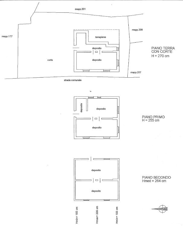
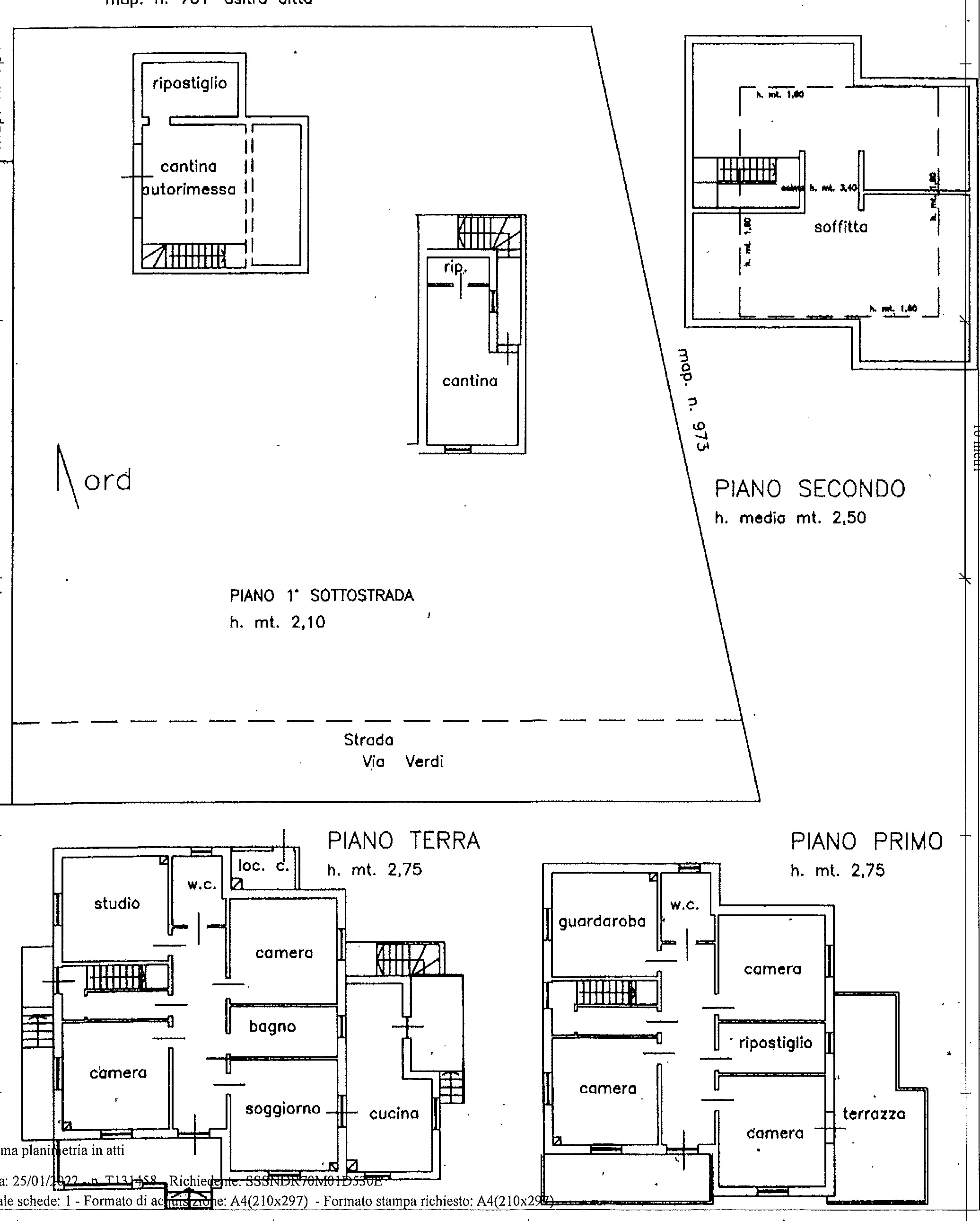
FastHomeStore service
Contenuto cartella